-
今回ご紹介する施工事例は、日高町内にあります女子生徒が研修に来る農業専門学校様の女子生徒寮です。
2025年8月末頃に完成してお引渡しをさせて頂きました。
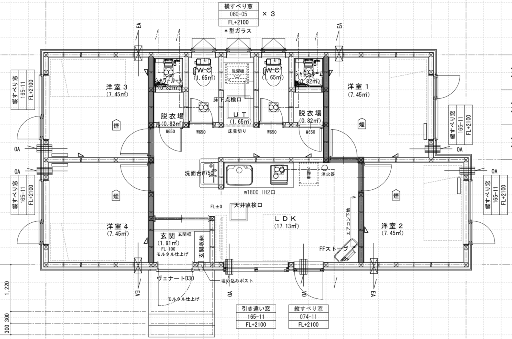
平屋の小さな寮ですが、寝室4部屋+リビングを設けており、シャワールーム2ヶ所、トイレも2ヶ所設置しています。
素敵な寮が完成しましたので社員寮などをお考えの方の参考になればと思います。
- 沙流郡日高町 農業専門学校女子寮新築工事
- 建築面積 :57.13㎡ 木造平屋住宅
- 1階床面積 :57.13㎡
- 延べ床面積 :57.13㎡
- 敷地面積 :1135.00㎡

- 約10帖のLDKと4.5帖の寝室が4ルーム、トイレが2つとシャワールームが2つ、洗濯機もおけるスペースを確保しました。



-
女子寮らしくホワイトの可愛らしい落ち着いたおしゃれな色目のサイディングを採用いたしました。
外壁は窯業系サイディングなので、様々な種類があるため好みのデザインやカラーを選ぶことができます。
サッシは高断熱樹脂製サッシでペアガラス、Low-e皮膜が施されアルゴンガスも注入されている断熱性の高い窓を設置しました。
これで冬の寒さも軽減できますね。
樹脂サッシの色もホワイトにすることで威圧感のないエレガントなイメージになっています。
屋根は1.5寸勾配の比較的緩やかな傾斜の屋根で、ガルバリウム鋼板の金属屋根を採用しました。
ガルバリウム鋼板は耐用年数が長く軽量で今流行の屋根材です。
近年の住宅事情というのは、やはり地震に強い耐震性能と断熱性の高い建物が求められています。
Co2削減の国の政策により年々断熱性能の向上が建築業界では義務付けられています。
皆さんはZEHというワードを耳にされたことはありますでしょうか?
それは、ゼロエネルギーハウスのことで自分の家の消費エネルギーをゼロにするという意味です。
つまり、太陽光発電や蓄電池により消費するエネルギーと生産するエネルギーを同じに近づけていこうという考え方です。
そのような背景もあり、より断熱性能の高い住宅の仕様が必須になってきています。
また、耐震性能に関しても過去の大地震による災害を考えると、軽量の屋根を採用することが多くなりました。
あらゆる時代背景をもとに、今の建築材料の選定が重要視されているのです。
こちらの建物に限らず外装の仕様は、この建物が時代を反映しているということになりますね。
お客様のご予算を考えコストを抑えつつ、住宅性能を担保するのが我々建築にたずさわる業者の仕事だと考えます。
少しお堅いお話に脱線しましたが、今建築している建物の性能は一昔に比べると、とてもハイレベルな建物になっていると言えるのではないでしょうか。


-
エントランスは木目とグレイッシュなカラーコーディネートでとてもおしゃれに仕上がりました。
女性が好みそうなカラーでまとめた感じは、女子寮のイメージとしてとても良いのではないでしょうか。
玄関ドアは、1本のスリットガラスで採光を取ることで明るさを確保しています。
玄関土間も今流行のモルタル金ゴテ仕上げにしました。
タイル貼りも色々デザインが楽しめて良いのですが、無機質な感じのコンクリート土間も素敵だと思いませんか?
玄関ドアとのマッチングもベストだと思います。
また、たっぷり入る玄関収納はシューズだけではなく、部屋に持って入ることのできない物も吊戸棚に収納可能です。
玄関ホールのフローリングも木目で素敵なカラーコンビネーションに仕上げました。


-
こちらはLDKで研修が終わった後に、みんなでワイワイガヤガヤと楽しく過ごせそうな空間になりそうですね。
節目が強調されたデザインのフローリングは人の心を癒す効果があります。
照明もメインはシーリングで明るさを確保し、キッチン上は手元を明るく照らすライトを採用いたしました。

-
シーリングライトで明るいキッチンです。
十分調理ができるスペースもあり、IHコンロで安全性も考慮しました。
吊戸棚とキッチン下も収納力があり寮としては十分ではないでしょうか。
キッチンのライン取手はどの場所からも手をかけられるため使い勝手が良い取手を選んでいます。
ダークな面材もシックで落ち着きと高級感があります。
ヒーターも完備し冬の寒さも安心です。


-
4.5帖の寝室です。
この広さの寝室が4つあります。
幅広のフローリングは落ち着いたナチュラル色で表情も豊かで綺麗な床材を採用しました。 パネルヒーターも完備しています。
断熱材も高性能グラスウールと押出型ポリスチレンフォームを適材適所に採用し断熱性能を担保しています。
樹脂サッシとのコンビネーションで冬の寒さから守ります。
白のサッシも綺麗で女子寮にはピッタリです。
シーリングライトはリモコン付きで便利に使用できます。

-
女子寮では複数の人が使用するのでトイレは2ヶ所に設計されています。
節水タイプのタンク付きトイレはとても環境にも優しくリーズナブルで長持ちします。
住宅ではタンクレスが流行っていますが、タンク付きトイレの方が故障した際の費用が安くなるのはご存知でしょうか。
タンクレスのメリットは、おしゃれな外観とスッキリしたデザインです。
しかし、故障した場合は大変でタンクレスは一体型のため、全て買い替えか修理するしか方法はありません。
そう簡単に故障はしませんが、長く使用しているといつかは故障することもあります。
その反面、タンク付きトイレは便器・便座・タンクと3つの部材で構成されているため故障している部材のみの交換で済みます。
長く使いたい人にはタンク付きトイレの方がおすすめということになりますね。
また、床のクッションフロアは防水性があり、水で濡れてもサッと簡単に掃除ができます。
シックなコンクリート調のデザインを選んだことで、汚れも目立ちにくくとてもおしゃれです。
小さな小窓を設置して、日中の採光を取り入れ時には換気もできるようにしました。

-
こちらは洗濯スペースで奥に洗濯機を設置します。
ブレーカーや給湯器などあまり表に出さない機器がここに集約されているという感じです。
小さな窓を設置し、日中も暗くならないよう自然光が入るようにしました。
換気も風を通すこともできるため湿気でカビることもありません。

-
今回の建築はお風呂は不要ということで、ユニットバスではなくシャワールームを設置しました。
鏡も付いているので女性にとっては便利ではないでしょうか。
脱衣スペースの床は水回りには欠かせない防水仕様のクッションフロアです。
いかがだったでしょうか。
弊社は戸建住宅はもちろんのこと、社宅や集合住宅などの経験と実績もございますので、ご検討されている方は一度お気軽にご相談ください。
無料相談 ご来店予約
資料請求・ご相談など